Wembley Wembley

Wembley, HA9 8TR

4 bedroom Semi-detached house for sale

£650,000

  • 4 bedroom
  • 2 bathroom
  • 1 reception

Key Features

  • Well presented 4 bedroom semi
  • Two intercommunicating reception rooms
  • Modern fitted kitchen
  • Utility room
  • Modern family bathroom/wc
  • Garage converted to 4th bedroom with ensuite shower room/wc
  • Generous garden
  • Off street parking

Description

GUIDE PRICE £650,000 - £700,000 Offering a rare combination of generous living space, excellent presentation, and unparalleled local convenience, Cow & Co London is delighted to bring to the market this beautifully appointed four-bedroom semi-detached family home, situated on the highly sought-after Conway Gardens in South Kenton/Wembley. Perfectly suited for a growing family, this property is presented in very good condition throughout, ready for its new owners to simply turn the key and move in. Upon entering, you are greeted by a welcoming hallway that sets the tone for the bright and airy accommodation found throughout the home. The ground floor boasts expansive reception space, ideal for both relaxed family living and entertaining guests. The well-appointed kitchen features ample storage and workspace, catering effortlessly to the demands of modern family life. There is also a useful separate utility room off the kitchen and the garage has been converted to provide a 4th bedroom with ensuite shower room/wc. Upstairs, the property offers three further well-proportioned bedrooms, providing comfortable and versatile space for children, guests, or a dedicated home office. A well-maintained family bathroom completes the upper floor accommodation. Externally, the property benefits from a private rear garden—a fantastic space for summer dining, children to play, and outdoor relaxation—as well as off-street parking to the front. Conway Gardens is exceptionally well-positioned for everything Kenton & Wembley have to offer: Exceptional Transport: Rapid access to Central London via Preston Road & Northwick Park (Metropolitan Line), and South Kenton (Bakerloo/Overground). Outstanding Schools: Situated within the catchment area for several highly regarded local primary and secondary schools. World-Class Amenities: Moments from everyday conveniences, plus premium entertainment and retail at Wembley Stadium, OVO Arena, London Designer Outlet, and Boxpark. Why Choose This Home? With almost 40 years of local property experience, I know a fantastic forever home when I see one. Conway Gardens perfectly balances suburban tranquility, versatile family space, and ultimate city connectivity. An early internal viewing is highly recommended.


Location

Wembley, HA9 8TR


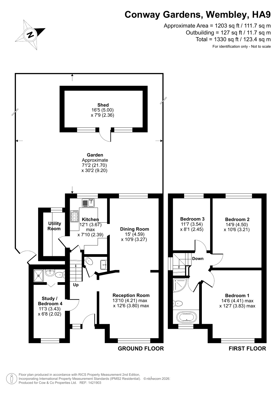
Floorplan

Floorplan

EPC

EPC for Wembley

Cow&Co London

1 Lower Ground Floor
10 Barley Mow Passage
Chiswick
W4 4PH