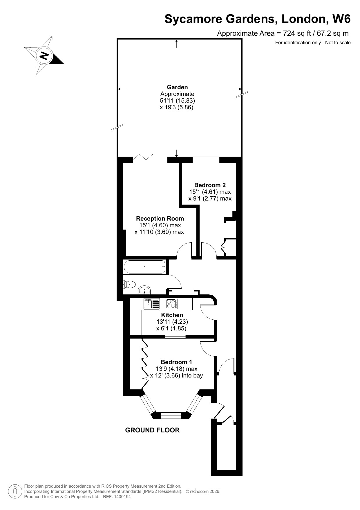
**GUIDE PRICE: £700,000 - £750,000** Tucked away within the highly sought-after Sycamore Gardens, officially forming part of the well-regarded Brackenbury Village, this attractive and well-presented lower-ground-floor, two double bedroom garden apartment offers an excellent balance of modern living, private outdoor space, and long-term security through a share of the freehold. The property is arranged to maximise both space and natural light. The heart of the home is the reception room, which provides a bright and versatile living area with ample space for both seating and dining. Large doors open directly onto the private garden, creating a seamless indoor–outdoor flow and making the space ideal for entertaining, relaxing, or working from home. The separate fitted kitchen is well laid out with good storage and worktop space, offering practicality for everyday living while remaining clean and contemporary in design. There are two well-proportioned bedrooms, both offering comfortable accommodation and flexibility for owner-occupiers, sharers, or those requiring a home office or guest room. The property is completed by a modern bathroom suite, finished in neutral tones. Further benefits include resident parking, a terraced position, and the increasingly rare advantage of a private garden, making this an appealing option for buyers seeking outdoor space within a well-connected West London location. Overall, this is a superb opportunity to acquire a well-located apartment with strong owner-occupier and investment appeal in one of Hammersmith’s most popular residential pockets. Location Description – Why Sycamore Gardens, Hammersmith Works So Well Sycamore Gardens is a quiet residential enclave within Hammersmith (W6), offering a peaceful setting while remaining exceptionally well connected. The area benefits from excellent transport links, including nearby Underground and bus services, providing fast and convenient access into Central London, the West End, and beyond. Residents enjoy easy access to a wide range of local shops, cafés, supermarkets, and amenities, with Hammersmith Broadway and surrounding neighbourhoods offering a vibrant mix of retail and dining options. Green spaces and riverside walks along the River Thames are also within easy reach, providing welcome outdoor leisure opportunities. The combination of connectivity, residential charm, and continued buyer demand makes this location a consistently strong performer for both homeowners and investors.