Hounslow Hounslow

Hounslow, TW4 7DR

3 bedroom Terraced House for sale

£500,000

  • 3 bedroom
  • 2 bathroom
  • 1 reception

Key Features

  • Three-bedroom terraced house
  • Quiet residential cul-de-sac location
  • Spacious reception room plus conservatory
  • Fitted kitchen with underfloor heating
  • Downstairs WC
  • Private rear garden
  • Scope for large loft conversion (STPP)
  • Well placed for transport links including Hounslow West Underground Station (Piccadilly Line)
  • Close to local schools, shops, amenities and green spaces including Osterley Park

Description

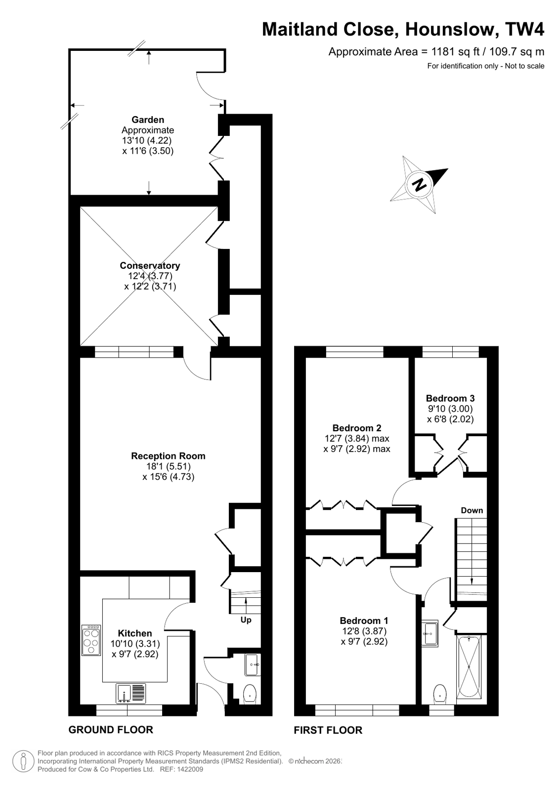
Set within a quiet residential cul-de-sac, this three-bedroom terraced house offers well-balanced accommodation, excellent natural light and scope for further extension, making it an ideal family home or investment opportunity. The ground floor features a spacious reception room with room for living and dining, leading into a bright conservatory overlooking the rear garden. A fitted kitchen with underfloor heating is positioned to the front of the property, alongside the added benefit of a downstairs WC. Upstairs, there are three well-proportioned bedrooms and a family bathroom. Externally, the property enjoys a private rear garden. Subject to the usual planning consents, there is potential for a large loft conversion, offering the opportunity to significantly enhance both space and value. The property is well located for transport links, with local bus routes nearby and Hounslow West Underground Station (Piccadilly Line) within easy reach, providing direct access to Central London and Heathrow. Road connections via the A4, A30 and M4 are also convenient. A range of local schools, everyday shops and amenities can be found nearby, with Hounslow High Street close at hand. Open green spaces including Osterley Park, Lampton Park and Beavers Lane Park are also easily accessible, offering excellent recreational options.


Location

Hounslow, TW4 7DR


Floorplan

Floorplan

EPC

EPC for Hounslow

Cow&Co London

1 Lower Ground Floor
10 Barley Mow Passage
Chiswick
W4 4PH