Harrow Harrow

Harrow, HA3 0RQ

3 bedroom Semi-detached house Under Offer

£775,000

  • 3 bedroom
  • 2 bathroom
  • 2 reception

Key Features

  • Fantastic size 3 bedroom 2 bathroom, semi detached house
  • Approx 31ft through lounge
  • Extra reception at rear of Kitchen/breakfast room
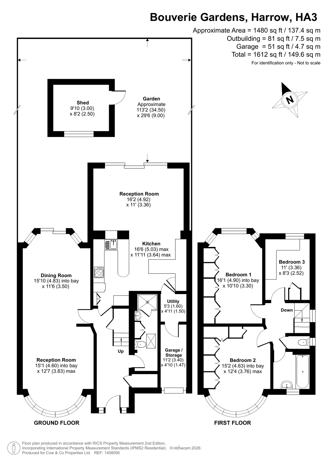
  • Approximately 1531 sq/ft of accommodation
  • Off Street parking
  • Cul-de-sac location in Mount Stewart catchment area
  • No onward chain
  • Approx 113ft x 29'6" rear garden

Description

Guide Price £775,000 - £825,000 Welcome to this charming 3-bedroom semi detached house located in a desirable neighbourhood in the Mount Stewart catchment area. This property boasts a spacious garden (113ft x 29'6"), perfect for outdoor entertaining or simply relaxing in the sunshine. With off-street parking and a storage garage, you'll have plenty of space for your vehicles and storage needs. The interior of the house is thoughtfully designed, featuring a fitted open plan kitchen/breakfast room, a cosy through lounge, a 3rd reception to the rear of the kitchen, and three well-appointed bedrooms. There is a modern family bathroom & wc upstairs and an extra shower room/wc downstairs partialy converted from the original garage and a very useful utility room. This house is ideal for families looking for a comfortable and inviting home with plenty of potential to further extend and develop (stpp). Situated in a convenient location close to amenities, schools, and transport links, this property offers both comfort and convenience. Don't miss out on the opportunity to make this house your forever home. Contact us today to arrange a viewing.


Location

Harrow, HA3 0RQ


Floorplan

Floorplan

EPC

EPC for Harrow

Video Tour


Cow&Co London

1 Lower Ground Floor
10 Barley Mow Passage
Chiswick
W4 4PH

Similar Properties

Harrow
For Sale

Harrow

5 Bed Detached house For Sale
Guide Price £750,000
Harrow
For Sale

Harrow

4 Bed Property For Sale
Guide Price £700,000
Harrow
Under Offer

Harrow

3 Bed Detached bungalow Under Offer
Offers in excess of £725,000