Chiswick Chiswick

Chiswick, W4 3SS

1 bedroom Property for sale

£500,000

  • 1 bedroom
  • 1 bathroom
  • 1 reception

Key Features

  • Large one double bedroom period conversion
  • Spacious and bright reception room
  • Separate fitted kitchen
  • Modern bathroom suite
  • Access to a beautifully maintained communal garden
  • Resident parking / Share of Freehold
  • Over 3 metre Ceilings – No Onward Chain
  • Prime Chiswick (W4) location & close to transport links

Description

**OPEN DAY EVENT – SAT 4 OF APRIL 2PM-4PM** **GUIDE PRICE £500,000 - £550,000** Set within an elegant period building on the first floor on the highly regarded Spencer Road in Chiswick, Is this beautifully presented larger than average one double bedroom flat which offers a rare combination of period charm, generous proportions, share of freehold, no onward chain, over 3-metre-high ceilings, large landscaped communal garden and exceptional outdoor space. The property is well-balanced throughout and benefits from high ceilings, large windows, and an abundance of natural light, creating a bright and welcoming living environment. The spacious reception room is a standout feature, offering excellent proportions for both relaxing and entertaining, complemented by attractive period detailing and a pleasant outlook. The separate kitchen is thoughtfully designed with ample storage, fitted washing machine and dishwasher, generous worktop space, making it both practical and stylish. The double bedroom is very well-proportioned and benefits from fitted storage, views onto the rear landscaped garden while the bathroom is bright and finished in a clean, modern style. A particular highlight of the property is the beautifully maintained communal garden, offering a rare and tranquil outdoor retreat, ideal for relaxing, entertaining, or enjoying green space within a central Chiswick setting. Further benefits include a resident parking space, period character features, and share of the freehold, No Onward Chain, making this an ideal purchase for first-time buyers, downsizers, or investors alike. A superb opportunity to acquire a charming and well-located home in one of West London’s most desirable neighbourhoods. EPC Rating: D Council Tax Band: D Location: – Spencer Road, Chiswick (W4) – One of the best roads to live on Spencer Road is a highly desirable residential street in the heart of Chiswick, known for its attractive period homes, tree-lined setting and strong community feel. The property is ideally positioned for Chiswick High Road, offering an excellent selection of independent cafés, restaurants, boutique shops, and everyday amenities. The area is renowned for its vibrant yet village-like atmosphere, making it one of West London’s most sought-after locations. Excellent transport links are within easy reach, including a 2 min walk to Chiswick Train Station, Turnham Green, and Stamford Brook Underground Stations (District Line), providing swift access into Central London and the West End and only 20 mins to Waterloo station from Chiswick Train Station. Residents also benefit from proximity to beautiful green spaces including, Chiswick House Gardens, Turnham Green, Stamford Brook Common and the River Thames, offering a fantastic balance of city living and outdoor lifestyle. Schools: The property is well positioned for a number of highly regarded local schools. Nearby options include Grove Park Primary School, Strand on the Green Primary School, both rated outstanding by Ofsted and in the top 100 times for primary schools.


Location

Chiswick, W4 3SS


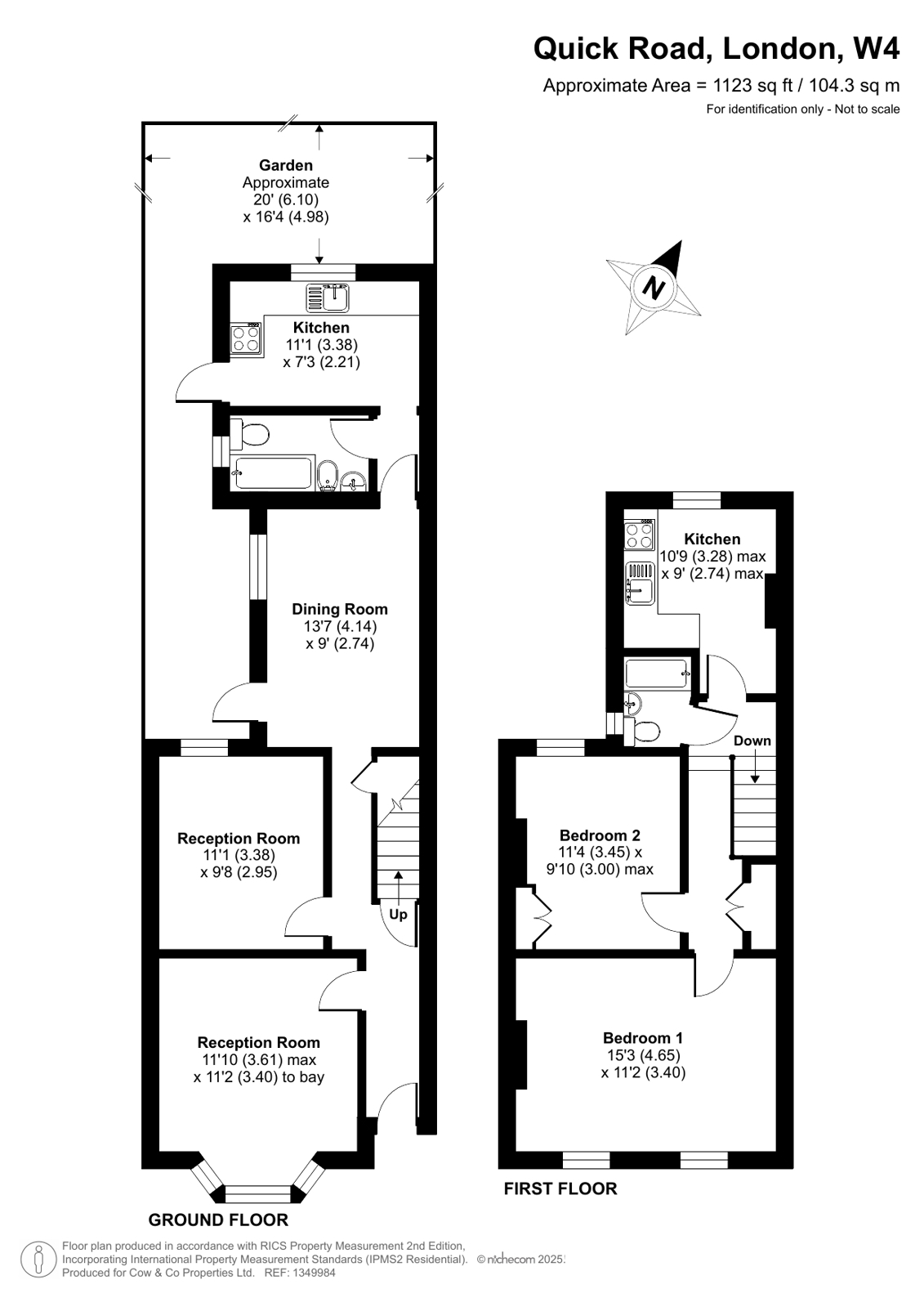
Floorplan

Floorplan

EPC

EPC for Chiswick

Cow&Co London

1 Lower Ground Floor
10 Barley Mow Passage
Chiswick
W4 4PH