Chiswick Chiswick

Chiswick, W4 2QR

2 bedroom Terraced House for sale

£750,000

  • 2 bedroom
  • 1 bathroom
  • 1 reception

Key Features

  • Spacious two-bedroom period house with excellent original character
  • Open-plan kitchen flowing into bright and airy living and dining space
  • High-quality fixtures and fittings throughout the home
  • Versatile additional outbuilding ideal as a home office or gym
  • Loft extension potential to increase living space (subject to planning permission)
  • Located on desirable Sutherland Road in Chiswick’s sought-after W4 area.
  • Excellent local amenities, including cafés, shops, and green spaces nearby
  • Convenient transport links
  • Chiswick house & Grounds moments away
  • No onward chain

Description

This beautifully presented two-bedroom house is set on the highly regarded Sutherland Road in Chiswick and offers stylish, well-balanced accommodation, a private rear garden, and a high-quality modern finish throughout — ideal for buyers seeking a turnkey home in a prime W4 location. The ground floor provides an excellent sense of space and flow, centred around a superb open-plan reception, dining, and kitchen area. This impressive living space is flooded with natural light and offers ample room for both relaxing and entertaining. The contemporary kitchen has been thoughtfully designed with extensive storage, quality integrated appliances, and generous worktop space, making it perfectly suited to modern living. Large doors open directly onto the private rear garden, creating a seamless connection between indoor and outdoor living. The garden has been carefully landscaped and provides a versatile space for entertaining, family use, or working from home, with the added benefit of a garden studio / home office, offering excellent flexibility. The upper floor accommodates two well-proportioned bedrooms, both finished to a high standard and offering comfortable, versatile accommodation. The principal bedroom benefits from excellent storage, while the second bedroom is ideal as a guest room, nursery, or home office. The property is served by stylish, modern bathroom facilities, finished in contemporary tones. Presented in excellent condition throughout, this is a superb opportunity to acquire a thoughtfully designed and well-located home in one of Chiswick’s most desirable residential streets. High ceilings, period features, quality joinery, and plentiful natural light add to the charm and sophistication. Outside, there is scope to create further value and space via loft conversion, subject to the necessary permissions. Location Description – Why Sutherland Road, Chiswick Is So Popular Sutherland Road is a highly sought-after residential street, ideally positioned for the best of Chiswick living. The area is known for its strong community feel, attractive period homes, and excellent access to local amenities. Residents benefit from close proximity to Chiswick High Road, offering an outstanding selection of independent cafés, restaurants, boutiques, and everyday shopping. Excellent transport links are nearby, including Underground and bus services, providing swift and convenient access into Central London, the West End, and Heathrow. Well-regarded schools, green spaces, and riverside walks along the Thames further enhance the appeal, making this an ideal location for professionals and downsizers alike.


Location

Chiswick, W4 2QR


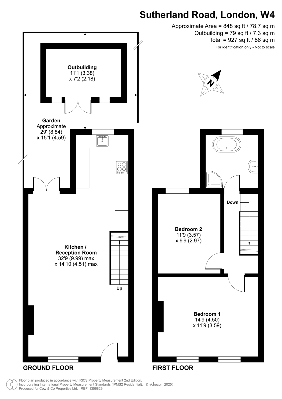
Floorplan

Floorplan

EPC

EPC for Chiswick

Cow&Co London

1 Lower Ground Floor
10 Barley Mow Passage
Chiswick
W4 4PH

Similar Properties

London
For Sale

London

2 Bed Property For Sale
Offers in excess of £800,000
Acton
For Sale

Acton

2 Bed Flat For Sale
Offers in excess of £575,000