Acton Acton

Acton, W3 6DE

4 bedroom House for sale

£1,200,000

  • 4 bedroom
  • 2 bathroom
  • 2 reception

Key Features

  • Situated on one of Acton’s most sought-after roads (W3 6DE)
  • Attractive three-bedroom period home arranged over three floors
  • Retains a wealth of beautiful original features and character
  • Spacious and versatile living and dining areas
  • Generously sized bedrooms providing flexible accommodation
  • Secluded private garden, perfect for relaxation and entertaining
  • Close to excellent transport links, amenities, and schools
  • A rare opportunity to acquire a charming period residence in a prime location

Description

Charming Four-Bedroom Period Home in Prime W3 Location Nestled in one of Acton’s most sought-after roads (W3 6DE), this delightful Four-bedroom property combines timeless period charm with modern family living across three well-arranged floors. Boasting an array of beautiful original features, the home exudes character throughout, while offering versatile accommodation perfectly suited to both growing families and professionals. The ground floor provides a welcoming entrance, spacious living and dining areas filled with natural light, and direct access to the lovely, secluded rear garden – an idyllic retreat ideal for relaxing or entertaining. Arranged across the upper floors are three generously proportioned bedrooms, providing ample space and flexibility. Set within a highly desirable residential enclave, the property benefits from close proximity to local amenities, excellent transport links, and well-regarded schools, making it a rare opportunity in such a coveted location. The ever popular Churchfield Road is moments with a fantastic array of shops, bars and delicatessens. This home presents an exceptional chance to acquire a period residence on one of W3’s finest roads, offering a harmonious blend of elegance, privacy, and convenience.


Location

Acton, W3 6DE


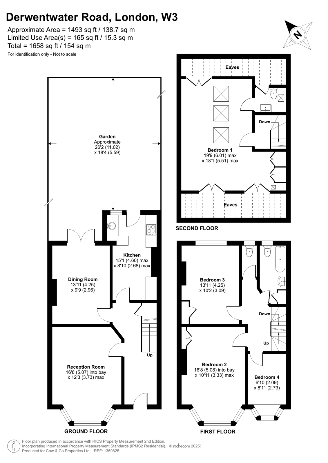
Floorplan

Floorplan Floorplan

EPC

EPC for Acton

Cow&Co London

1 Lower Ground Floor
10 Barley Mow Passage
Chiswick
W4 4PH

Similar Properties

Acton
For Sale

Acton

1 Bed Property For Sale
£350,000
London
Under Offer

London

1 Bed Property Under Offer
Guide Price £300,000